Glider Tower Page
To Pad & Tower Page
To 2011 Pad & Glider Tower Page


R/C Rocket Boosted Glider Tower

by George Gassaway

Many of the following drawings and photos were used for an R&D Report by the Southern Neutron Team at NARAM-37 in 1996. Unfortunately, the R&D files were lost on a bad hard drive, so the report text itself and some drawings were lost.

The R&D report focused on the adjustable aspects of the tower design. So that a wide variety of models could be flown off of it. This is notable since most R/C RBG's require a special rail configuration that only tends to work with that model, or model VERY much like the one the tower was built for.

In the years since that report, a number of other R/C RBG Fliers have made up their own versions of this tower, and sometimes their own versions of the Omni-Pad as well.


Four Cuda R/C R/G's in Towers at NARAM-43 in 2001

 

The first time I ever saw a R/C Rocket Boosted Glider use a tower was at the 1980 WSMC in Lakehurst, N.J.

Bob Parks used a tower to launch his "Eagle" class (D/E power) R/C Boost Glider. Bob, along with Bernard Biales, had come up with the idea, and the way the model took off was very impressive. Over time, the Glider Tower idea caught on with other fliers as well.

I originally used launch rods for my early R/C Boost Gliders, and even my first R/C Rocket Gliders. But those had issues with binding the rod, and even more problems in wind. In 1986, I decided to get serious about doing R/C R/G, with a new dedicated R/G design (Synchronicity), instead of kludged modifications of old B/G models. To go with that, I also built a Tower. That first tower used 3/4" diameter aluminum tubing and shelving rails for tower rails, plus a very beefy built-up base to mount everything together. It was mounted to my first Omni-Pad, which itself was pretty heavy as it used 1 x 2 wood. The tower worked well, but it was an awful lot to transport to NARAMs and WSMC's. Also, that tower had been built to work with Synchronicity. It was not adjustable however, other than adding in some shims to vary for wing thickness, nothing more.

Adjustable Tower:

I originally used launch rods for my early R/C Boost Gliders, and even my first R/C Rocket Gliders. But those had issues with binding the rod, and even more problems in wind. In 1986, I decided to get serious about doing R/C R/G, with a new dedicated R/G design (Synchronicity), instead of kludged modifications of old B/G models. To go with that, I also built a tower. That first tower used 3/4" around aluminum tubing for the two main rails and shelving rails for the upper wing rails, plus a very beefy base to hold everything together. It was mounted to my first Omni-Pad, which itself was pretty heavy as it used 1 x 2 wood. The tower worked well, but it was an awful lot to transport to NARAMs and WSMC's. Also, that tower had been built to work with Synchronicity. It was not adjustable however, other than adding in some shims to vary for wing thickness, nothing more.

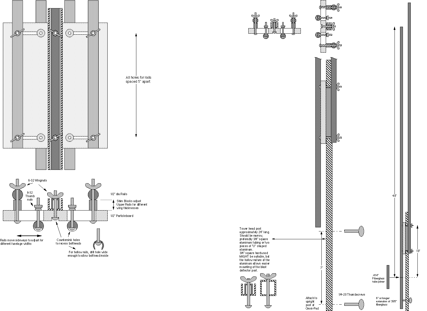
In the early 1990's, I came up with a new design to use an adjustable tower head. Made from 1/2" particleboard, with slots to allow for the inner rails to be moved to allow for fuselage width. And by use of long screws and special spacers, it could b configured to be used for a wide variety of designs. Ed LaCroix made several of those, for his own use and made some spares that were sold to a few other fliers who were interested.

As with the Omni-Pad, one of the key design elements was not to need any tools to assemble or adjust the tower. So, the tower uses 6/32 bolts, with wing-nuts, or thumb-nuts so the tower could be assembled and mounted using only one's hands.

The tower rails were adopted from ones that had already been used by other U.S. member for their R/C R/G towers and Contest Model towers. Rails made of .505" fiberglass tubing, with joiners made of .414" fiberglass tubing. It is surprising the number of people who have seen those black resin fiberglass rails and assumed those were highly expensive graphite tubes.

The fiberglass rails can be found at some of the better Kite Supply vendors. Such as: Kitebuilder.com and Goodwindskites.com.

Disassembled tower, with rails, Tower Head, and blast Deflector parts

Side view of Assembled tower

Upper view of Tower

Underneath view of Tower

Tower Mounted to Omni-Pad

Synchronicity (left) and Big Bird 1 (boosted by Ed LaCroix), on two Adjustable Towers and Omni-Pads

Assortment of R/C RBG Towers at NARAM-50 (2008)

Rod Schafer with model in an Adjustable Tower
based on the information you see here.

Drawings:

Tower Head Drawing

Tower Assembly, bolts and layout

Rail useage

DEflector and Micro-Clips standoff

Adustment for different model types

The original wooden Omni-Pad
Also see the Omni-Pad and Contest Tower Page.

Back to top

Glider Tower Page
To Pad & Tower Page
To 2011 Pad & Glider Tower Page